D'Ovidio Marcello

RIF.VA 405 VENDITA MONTEFOLLONICO SI APPARTAMENTO CON RESEDE PRIVATO RICH. € 85.000,00

www.immobiliaredovidio.it

INF. AG. D'OVIDIO 3381965857

RIF. VA 405

RICH. € 85.000,00

Montefollonico (SI), appartamento con resede privato

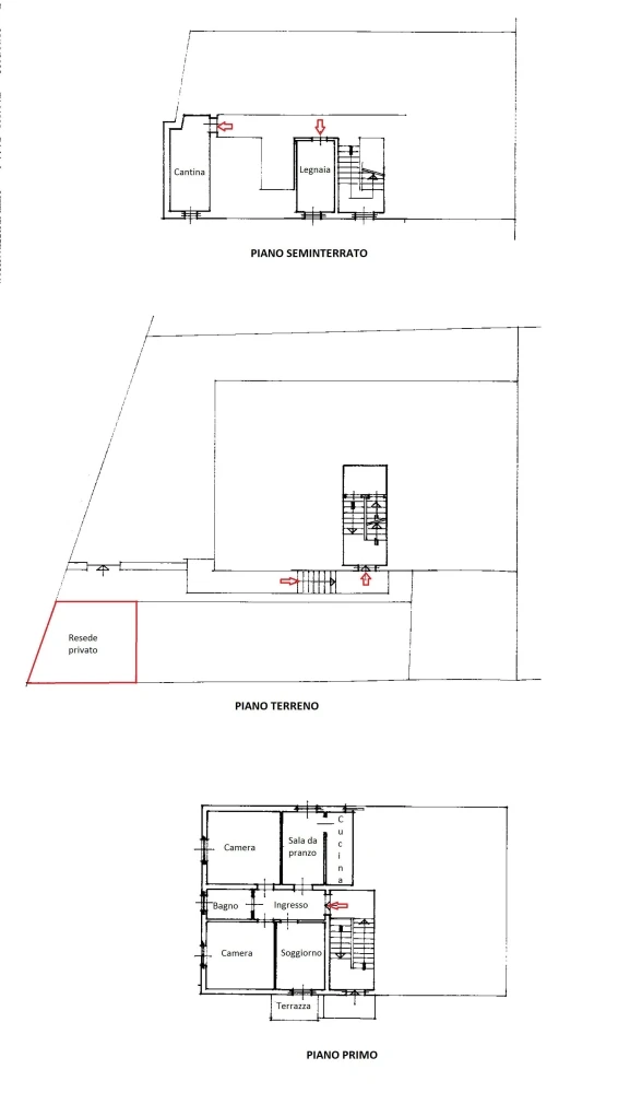
Nel grazioso borgo di Montefollonico, a breve distanza da Montepulciano e Pienza, si propone la vendita di appartamento di mq. 77 posto all'interno di piccola struttura quadrifamiliare, corredato di due locali accessori ad uso cantina/legnaia di complessivi mq. 20 ed un Resede privato di mq. 25. Posta al piano primo, l'abitazione si compone di ingresso, soggiorno, sala da pranzo con cucinotto, due camere matrimoniali, bagno e terrazza. Area garage in comune al piano terreno. La proprietà dispone di impianto di climatizzazione caldo/freddo e si trova in buono stato di manutenzione generale. Nessun costo di gestione condominiale. Subito disponibile, l'agenzia dispone direttamente delle chiavi per le visite.

Finiture:

Impianto di climatizzazione caldo/freddo. Infissi in legno con vetro termico ed avvolgibili in pvc.

Comfort aria condizionata - canna fumaria

Ambienti

bagni n.1

camere n. 2

garage n. 1

numero locali 4

ripostiglio n 1

terrazzi n 1

giardini mq 25

cantina n.- cucina - giardino -soggiorno

Livelli primo piano

PÀESTAZIONE ENERGETICA

Stato dell'immobile

stato manutenzione buono

Prestazione energetica

Contratti tipo di proprietà intera proprietà Più efficiente QUA* Zt'O stato al rogito libero

CLASSE ENERGETICA

Altre informazioni

Metri quadri 97

175

kWh/m: anno

efficiente

Indice della prestazione energetico rinnovabile

EPgl,ren : kWh/m2

Inverno Estate

Prestazione enetgctico del fabbricoto



 RICHIEDI INFORMAZIONI

Potrebbe interessarti anche:

AGENZIA DI AFFARI D'OVIDIO Vendesi Loc Bettolle Vendesi a pochi passi dal centro e da tutti i servizi terratetto libero su tre lati La propriet di circa...

AGENZIA DI AFFARI D'OVIDIO VENDESI Loc Bettolle Vendesi carinissimo terratetto libero su due lati Composto a pterra da ampio e luminoso soggiorno...

www immobiliaredovidio it Montepulciano Stazione SI appartamento quadrilocale con garage RIF VA ln localit Montepulciano Stazione a breve...

RIF VV www immobiliaredovidio it Gracciano di Montepulciano SI casa singola con giardino A breve distanza da Montepulciano in LOC Gracciano si...

RIF VB VENDESI PORZIONE DI BIFAMILIARE CON GARAGE IL CONTESTO RESIDENZIALE SI PROPONE LA VENDITA DI PORZIONE DI ABITAZIONE BIFAMILIARE SU LIVELLIDI...

www immobiliaredovidio it VENDITA IMMOBILE A METRI DAL PAESE STORICO DI LUCIGNANO AREZZO TOSCANA IMMOBILE COMPOSTO DA PIANO TERRA CANTINETTA E N...